The Celestial Hotel and Snow & Saree Retail

Overview

Boutique Hotel & Retail Store – The Post Office (John D. Higinbotham Building, 1913)

Located in the heart of downtown Lethbridge, this project reimagines the historic John D. Higinbotham Building (1913) as a boutique hotel and retail space, blending heritage preservation with modern design. The concept highlights the building’s original architectural elements—exposed brick, decorative moldings, and historic woodwork—while introducing contemporary materials and interior solutions to create a sophisticated yet inviting atmosphere. The boutique hotel offers a refined and intimate stay, featuring thoughtfully designed guest rooms, a welcoming lobby, and curated amenities. The retail space complements the hotel, providing a seamless experience that respects the building’s legacy while catering to modern clientele. With a strong focus on historical restoration, accessibility, and adaptive reuse, the design ensures compliance with Alberta Building Code and barrier-free requirements while allowing for future growth and leased spaces.

Programming Phase

Research about building:

The John D. Higinbotham Building, also known as The Federal Building or Post Office, is a historic landmark located at 706 – 4 Avenue South in downtown  Lethbridge,  Alberta.  Constructed  in 1912-13  and  designed  by  Chief  Architect  David Ewart, the building occupies nine city lots at a prominent corner  location.  It  served  as  a  vital federal hub, housing key operations such as the Post  Office,  Customs  and  Excise,  Immigration, Revenue, and other government offices, making it   central   to   Lethbridge’s   growth   and development.  Its  Second  Empire/Beaux-Arts architecture   symbolized   the   dignity   and prosperity of the era, reflecting in its design and functionality.  The  building  also  represents  the evolution  of  postal  services  in  the  city,  which grew  alongside  its  population  and  economy. Despite a 1958 modern addition and subsequent renovations,   the   building   remains   a   civic landmark,  blending  historical  significance  with architectural  elegance  and  embodying  the heritage of Lethbridge

Target Market:

  • Age: Primarily 25–55 years old, with some younger guests (18- 24) for events and older guests (55+) for leisure stays.
  • Occupation: Professionals, business travelers, tourists, and occasional leisure visitors.
  • Ethnicity: Diverse, reflecting the multicultural makeup of Lethbridge.
  • Economic Status: Middle to upper-middle class, ranging from moderate-income travelers to business executives and tourists seeking a higher- end stay.
  • Income Bracket: $40,000-$120,000+ annually.

Space Analysis:

Concept Phase

The night sky has always been a source of wonder, with its twinkling stars and drifting clouds creating a sense of calm and mystery. Inspired by  this  celestial  beauty,  The  Celestia  Hotel  offers  a  dreamy  and immersive experience. Soft, star-like lights glow from the ceiling, while cloud-like  textures  add  an  airy,  ethereal  touch.  Deep  colors  and reflective surfaces enhance the feeling of depth, making guests feel as if they are beneath a vast, starlit sky. This unique design creates a serene and elegant retreat, where the magic of the night surrounds every moment.

Material selection

Design Development

1st Floor

2nd Floor

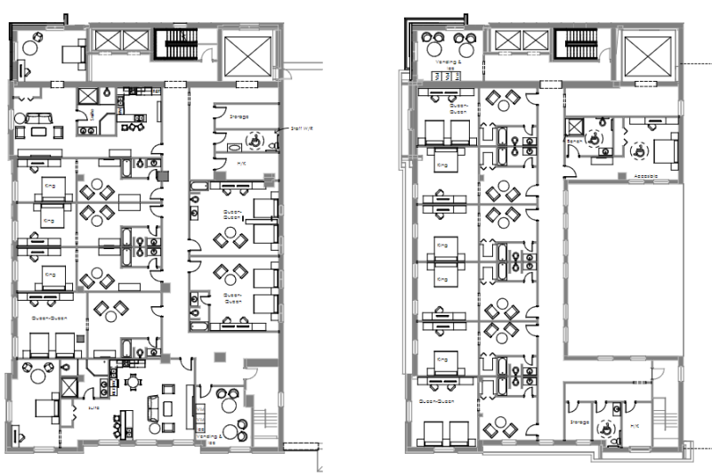
3rd and 4th Floor

RENDERINGS

SUITE RENDERING

COMING SOON

I’m currently working on capturing the refined details, modern touches, and historic charm of the Celestial Hotel through realistic renderings. Stay tuned for a visual journey that brings this boutique transformation to life!

"Design is not just what it looks like and feels like. Design is how it works, transforms, and inspires."

Address

1803, 15th avenue south, Lethbridge, AB.(T1K 0X1)

Connect